| 일 | 월 | 화 | 수 | 목 | 금 | 토 |
|---|---|---|---|---|---|---|
| 1 | 2 | 3 | 4 | 5 | 6 | |
| 7 | 8 | 9 | 10 | 11 | 12 | 13 |
| 14 | 15 | 16 | 17 | 18 | 19 | 20 |
| 21 | 22 | 23 | 24 | 25 | 26 | 27 |
| 28 | 29 | 30 | 31 |
- cad 배우기
- layer
- 도면 관리
- CAD 기본
- 건축설계
- 캐드팁
- 도면 수정
- 캐드명령어
- CAD명령어
- 외부참조
- 명령어
- 속성블록
- Auto CAD
- 캐드 배우기
- Move
- cad 기초
- 캐드
- 캐드 명령어
- xref
- 도면정리
- CAD팁
- 건축 CAD
- CAD 명령어
- 캐드 팁
- 캐드 기초
- Align
- 3D모델링
- 객체선택
- cad
- 오토캐드
- Today
- Total
cadnote 님의 블로그
Auto Cad_무한선/기준선 그리기 본문
CAD를 사용하여 도면을 작업하다 보면 일반 선(LINE)과 같이 자주 사용되는 선이 바로 '무한선'이에요!!
무한선은 설계의 기준이 되는 축, 정렬선, 가이드라인 등으로 자주 사용되며, 특히 건축, 토목, 기계도면에서 매우 유용하게 쓰입니다!
평소 LINE 명령어를 사용하며 일일이 선으로 시작점과 끝점을 지정하여 사용하셨나요??
그럼 오늘 소개할 XLINE(단축키:XL)으로 작업 속도를 2배 이상 줄일 수 있어요!!
이번 포스팅에서는 무한선 XLINE의 개념부터 사용법, 실전 예시, 장점 및 주의사항까지 모두 다뤄보겠습니다!
1. 무한선(XLINE)이란??
무한선은 일반 선과 다르게 양방향으로 무한히 뻗어나가는 직선이에요!
끝점이 없기 때문에 기준선, 중심선, 작업보조선 등 설계 기준을 잡는데 자주 활용됩니다!
- 일반선(LINE) : 시작과 끝점이 있는 유한한 선
- 무한선(XLINE) : 시작과 끝이 없이 양쪽으로 무한하게 뻗어나가는 선
2. 무한선을 사용하는 이유는?
- 정렬 기준을 만들기 위하여 사용
- 객체들을 일정 간격으로 배치하거나 정렬할 때 기준선을 먼저 만듭니다 - 중심선이나 대칭선 설정
- 건물, 기계부품, 인테리어 설계에서 중심선이 중요한 역할을 합니다. - 작업 중 가이드라인으로 활용
- 실제로 도면에는 출력되지 않는 레이어를 사용하여 작업 시 참고용으로 사용합니다.
3.XLINE 사용법

먼저 명령어는 XLINE(단축키:XL)!!!
명령어를 입력해 주고 엔터를 누르게 되면

위사진과 같이 점을 지정하거나 원하는 옵션을 선택하라는 내용이 나와요~
옵션은 아래 표를 참고하여 작성하길 원하시는 타입의 옵션명을 입력해 주면 됩니다!!
| 옵션 | 내용 |
| H(Horizontal) | 수평 무한선 작성 |
| V(Vertical) | 수직 무한선 작성 |
| A(Angle) | 특정 각도를 지정하여 무한선 작성 |
| B(Bisect) | 두 선의 사이에 무한선 작성 |
| O(Offset) | 기존 무한선에서부터 설정한 거리만큼 떨어진 무한선 생성 (OFFSET 기능과 동일) |
그 후 지점을 선택하여 클릭만 해주면 무한선이 완성돼요~
4. 실무 활용 예시
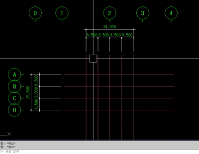
- 건축 평면도 작성 시 기준 축 설정
-건축 평면도를 그리기 전 XLINE을 활용하여 그리드 라인을 설정하면 벽체, 기둥 위치를 잡기 쉬워집니다! - 정렬 기준선 설정
- 버블이나 통일된 벽체라인 설정 시 원하는 위치 기준으로 무한선을 배치한 후 SNAP 기능으로 정렬이 가능해요! - 입면 및 단면 투영선 작업 시, 정확한 수직선 기준 제공
- 입면도나 단면도를 작성할 경우 평면 벽체 라인에 XLINE을 활용하여 벽체 및 마감 끝선 위치를 빠르게 그릴 수 있어요!

5.XLINE과 비슷한 명령어
XLINE과 비슷한 명령어로는 'RAY'명령어가 있습니다!
| 구분 | XLINE | RAY |
| 방향 | 양방향 무한선 작성 | 한 방향 무한선 작성 |
| 용도 | 기준선, 중심선 | 방향 체크 |
둘 다 무한선 개념으로 비슷하지만 'RAY'명령어는 보통 방향을 체크할 경우 많이 사용하는 명령어예요~
체크해 두시고 언젠가 사용하게 될 날이 생길 경우를 대비하여 참고해 두시면 좋을 것 같아요!!

6.XLINE 장점 및 주의사항
① 장점
- 무한 연장선이라 좌표 설정에 탁월
- 선 길이 계산 없이 빠른 사용이 가능
- 다른 객체의 간격 기준선 역할
② 주의사항
- XLINE 앞서 설명한 바와 같이 참고를 위한 선으로 활용되어 출력 시 보이지 않도록 처리해야 하므로 DEFPOINTS 레이어로 작성하거나 별도의 논플롯 레이어를 만들어 사용하길 권장합니다!
- 너무 많은 선은 도면이 복잡해질 수 있으므로 작업 후 정리 필수입니다!
7. 마무리
무한선(XLINE)은 단순해 보이지만 도면의 정렬, 기준, 대칭 구조를 잡는데 필수적인 도구입니다!!
처음에는 자주 사용하지 않지만, 쓰면 쓸수록 도면 작업의 정확성과 속도를 높여주는 유용한 기능이라는 것을 느끼게 될 거예요!!
다음번에는 도면을 시작할 때는 XLINE을 통하여 기준선을 잡고 시작해 보는 것이 어떨까요??
'Auto Cad' 카테고리의 다른 글
| Auto Cad_시스템 변수 프록시 정보 알림창 가리기 (0) | 2025.07.17 |
|---|---|
| Auto Cad_불필요한 선 일괄로 자르기 (0) | 2025.07.16 |
| Auto Cad_Excel 표 연동 (4) | 2025.07.14 |
| Auto Cad_텍스트 포인트 변경 (6) | 2025.07.11 |
| Auto Cad_특성창 열기 (4) | 2025.07.11 |